Zur Immobilie
Ihr Bauprojekt in Birgitz – 457 m² sonniges Grundstück mit bewilligter Architektenplanung!
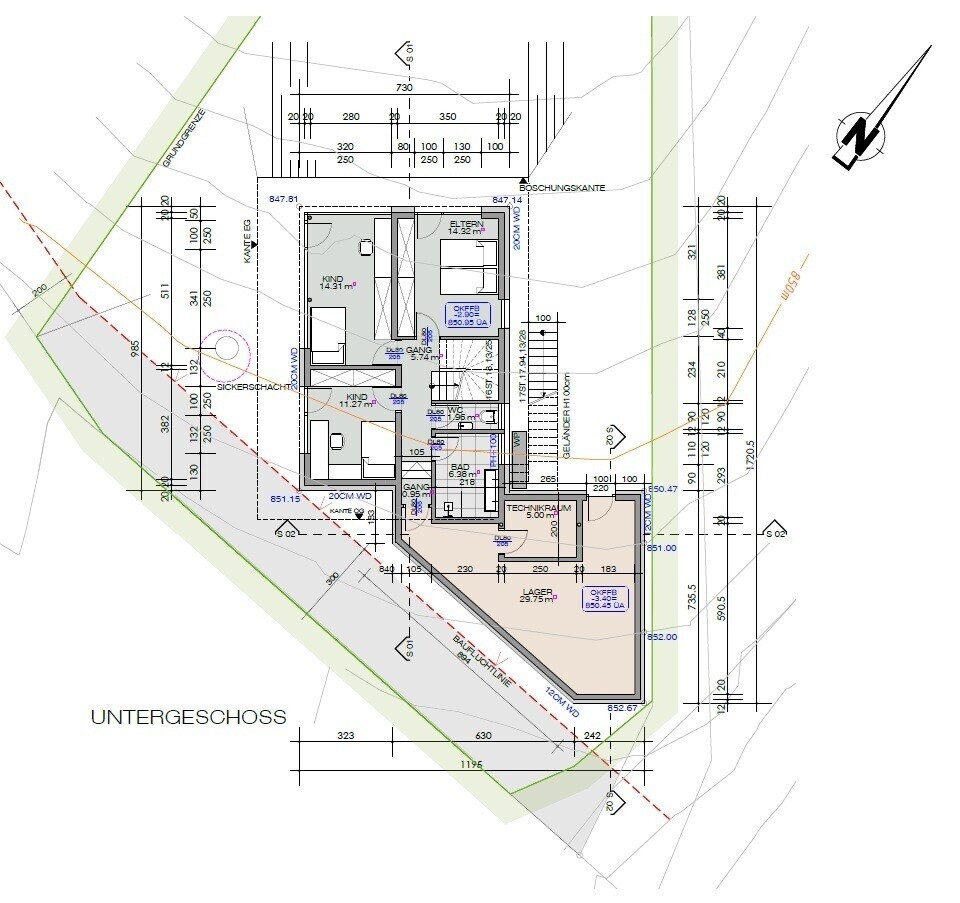
Auf diesem sonnig gelegenen Grundstück in Birgitz erwartet Sie das perfekte Fundament für Ihr Eigenheim! Mit 457 m² Fläche und einer bereits bewilligten Architektenplanung für ein modernes Einfamilienhaus, können Sie direkt mit Ihrem Traumprojekt starten. Das Haus bietet auf 100 m² Wohnfläche Raum für Familienleben in einer lichtdurchfluteten, offenen Gestaltung. Eine großzügige Terrasse rundet das Angebot ab und lädt zu entspannten Stunden mit herrlichem Blick ins Tiroler Oberland ein.
Key-Facts:
* Grundstücksgröße: 457 m² in sonniger Hanglage
* Wohnfläche des geplanten Hauses: 100 m² zzgl. Terrasse
* Raumaufteilung: 4 Zimmer, 1 Bad, Extra-WC, großes Lager
* Wohnbereich: Offenes Konzept mit raumhoher Verglasung und Panorama-Ausblick
* Garage: Doppelgarage für 2 Autos
* Baubescheid vorhanden!
Ihre Vorteile: Profitieren Sie von einer durchdachten Architektenplanung und einem bestehenden Baubescheid – hier wird der Weg zum Traumhaus so einfach wie nie! Kontaktieren Sie uns für alle Details und eine Besichtigung vor Ort.
- Nutzungsart
- Wohnen
Noch bis inklusive Juni 2026 entfallen in Österreich die Eintragungsgebühren im Grundbuch (1,1% für Eigentum, 1,2% für Pfandrecht) bis zu einer Bemessungsgrundlage von 500.000 Euro, sofern der Erwerb zur Schaffung eines dringenden Wohnbedürfnisses dient.
Ihr Ansprechpartner
Herr Stefan Wötzer, MBA
Cityreal Treuhand GmbH
- Tel.:
- +43 676 9352010
- E-Mail:
- woetzer@cityreal.at
Fürstenweg
6020 Innsbruck






