Zur Navigation wechseln Zum Inhalt wechseln Zum Footer wechseln

Baureif und bestens geplant – Baubescheid bereits vorhanden!

ImmoNr.
CRT-97
Objektart
Haus
Objekttyp
Zweifamilienhaus
Vermarktungsart
Kauf
Straße
Johannesgasse
Hausnummer
2
PLZ
6020
Ort
Innsbruck
Land
Österreich
Wohnfläche
254 m²
Grundstücksgröße
358 m²
Anzahl Zimmer
7
Anzahl Schlafzimmer
4
Anzahl Balkone
1
Anzahl Terrassen
2
Befeuerung
Luft-/Wasserwärmepumpe
Stellplätze
1 Freiplatz, 2 Garagen
Kaufpreis
595.000,00 €
Provision
3 % zzgl. 20% USt.

Zur Immobilie

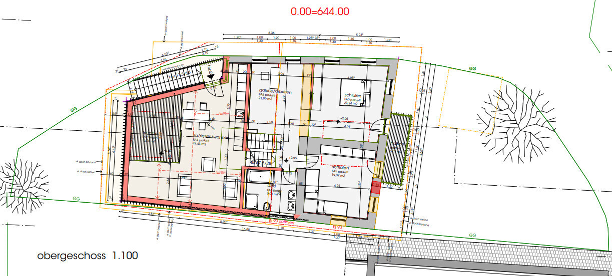
Wir freuen uns, Ihnen ein außergewöhnliches Baugrundstück im Herzen von Arzl anbieten zu dürfen. Das Grundstück eignet sich aufgrund seiner Größe ideal für die Errichtung eines Mehrfamilienhauses. Ein rechtskräftiger Baubescheid inklusive bewilligter Architektenplanung liegt bereits vor – Sie können somit ohne Verzögerung mit Ihrem Bauvorhaben starten.

Die geplante Bebauung überzeugt durch eine familienfreundliche Raumaufteilung und ein modernes, offenes Design, das sich harmonisch in das bestehende Ortsbild von Arzl einfügt.

Lage und Umgebung

Das Grundstück befindet sich im Dorfzentrum von Arzl, einem der begehrtesten Wohngebiete im erweiterten Stadtgebiet von Innsbruck. Durch die fortschreitende Entwicklung ist Arzl mittlerweile eng mit dem Stadtzentrum verbunden und bietet zugleich die Lebensqualität einer grünen Vorstadt mit hervorragender Infrastruktur, Nahversorgern, Schulen und öffentlichen Verkehrsanbindungen.

Grundstücksdaten:

• Grundstücksgröße: 358 m² (laut Grundbuch, Grenzkataster vermessen)
• Widmung: Landwirtschaftliches Mischgebiet
• Form: Langgezogen, polygonal
• Bestand: Altes Bauernhaus mit Wohntrakt (Süd) und Stall (Nord), technische Lebensdauer überschritten
• Erschließung: Voll erschlossen (Strom IKB, Wasser – städtische Trinkwasserversorgung, Telefon, Kanalanschluss)

Projekt und Planung

Das bewilligte Projekt umfasst ein modernes Mehrfamilienhaus mit zwei Wohneinheiten und einer Gesamtwohnfläche von ca. 254 m².

Die Planung überzeugt mit:

• großzügigen, lichtdurchfluteten Grundrissen
• modernen, offenen Wohnkonzepten
• großzügigen Freiflächen
• 3 Stellplätzen sowie Keller- und Abstellflächen

Dieses durchdachte Konzept bietet ideale Voraussetzungen für familienfreundliches Wohnen in zentraler Lage.

Überzeugen Sie sich selbst bei einer Besichtigung vor Ort von der attraktiven Lage und der bereits bewilligten Planung. Gerne stehen wir Ihnen für weitere Informationen und Terminvereinbarungen zur Verfügung.

Wir freuen uns darauf, Ihnen dieses besondere Angebot persönlich näherzubringen

Nutzungsart
Wohnen

Ihr Ansprechpartner

Herr Manuel Hofer

Tel.:
+512 392131-28
E-Mail:
m.hofer@cityreal.at

Fürstenweg 8
6020 Innsbruck

Weitere Immobilien

6020 Innsbruck

Revitalisierte Stadtvilla in Innsbruck: Historisches Flair trifft moderne Eleganz

ImmoNr.
1627
Objektart
Haus
Objekttyp
Villa
Vermarktungsart
Kauf
Anzahl Zimmer
4
Wohnfläche
100 m²

6176 Völs

Reihenhaus mit sonniger Terrasse in Völs

ImmoNr.
CRT-53
Objektart
Haus
Objekttyp
Reihenhaus
Vermarktungsart
Kauf
Anzahl Zimmer
4
Anzahl Schlafzimmer
3
Grundstücksgröße
150 m²
Wohnfläche
130 m²

    Deine Anfrage zu der Immobilie „Baureif und bestens geplant – Baubescheid bereits vorhanden!“ (CRT-97)

    * Pflichtfelder